10
2021.04
八戒筑家
262
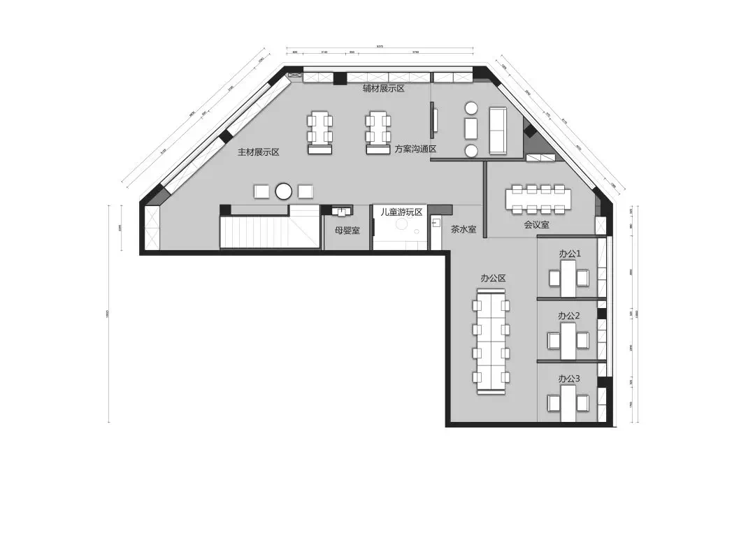
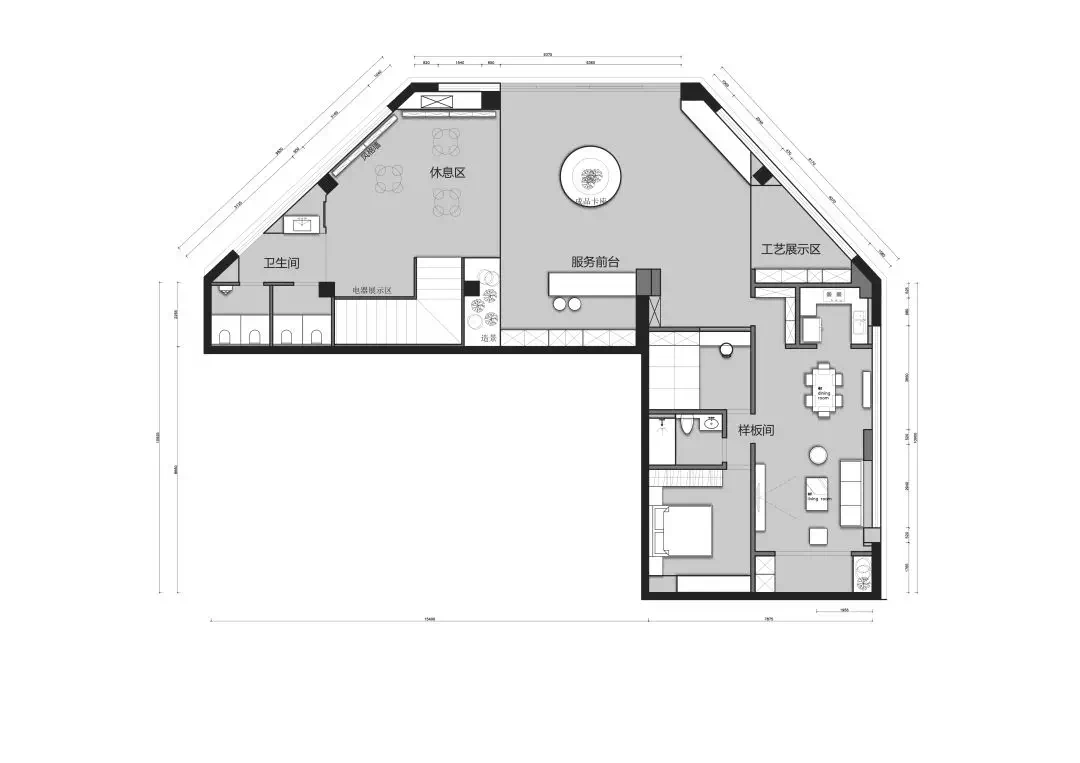
展览装饰设计的展厅,主要目的就是通过良好的产品展示或是形象展示为企业赢得更多的市场机会,从实用性角度考虑,展厅装修设计的风格和格调要匹配好产品的关联性和其特点。
八戒筑家装修设计展厅,设计师将创意融入到展厅空间,采用现代商务的设计手法,按照家具展示内容和种类进行区分,这样以便于集中管理,增加多样性和个性化,避免场景的单一性,展位搭建也提升了空间的层次感。整体设计以白色、米色、原木色为主,色调清新明亮,彰显了人文设计理念,空间充满现代温馨之感。呈现出简约风格中独特的美学。
展厅设计|空间设计|设计施工一体化






